リベルテ・ヴィル太秦皆正寺町
~新築完成内覧会~ 予約制
開催日:令和8年4月18日(土)、19日(日) / 毎週土日祝13:00~17:00

Open House
リベルテ・ヴィル太秦皆正寺町
開催日:令和8年4月18日(土)、19日(日) / 毎週土日祝13:00~17:00
【リベルテ・ヴィル太秦皆正寺町】
~完成内覧会ご予約受付中~
■■完全ご予約制です■■
ごゆっくりとご内覧して頂けます!
■南太秦小学校(正門)まで550m■中央病院まで400m
3Wayアクセス!!■京福帷子ノ辻駅迄歩11分■JR太秦駅迄歩15分■地下鉄太秦天神川駅迄歩21分
■皆正寺公園まで約280m
■公園や小学校・保育園が近く、お子様を見守りやすい場所なので安心です。
| 物件名 | ~新築完成内覧会~ 予約制 |
|---|---|
| 販売価格 | 4,298万円 |
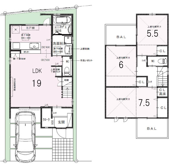
| 間取り | 3LDK |
| 土地面積 | 80.78 |
| 建物面積 | 86.50 |
| 販売数 | - |
| 総戸数 | 1 |
| 住所 | 京都府京都市右京区太秦皆正寺町 |
| 交通 | 京福嵐山本線 帷子ノ辻駅 徒歩約11分 |